Search Properties

Vyner Street, Ripon

Ripon

£215,000 Guide Price

3 x 1 x
Department:
Sales
Type:
Terraced House
Availability:
Sold STC
Receptions:
2
Council Tax Band:
B

Property features

  • SPACIOUS ACCOMODATION
  • CLOSE TO CITY CENTRE
  • REAR COURTYARD
  • BATHROOM WITH SEPARATE SHOWER CUBICLE

Summary

A stylishly presented mid-terrace period house, revealing a deceptively spacious interior, which offers a versatile and extended layout, arranged over three floors. The property offers immaculately maintained accommodation and a lovely, low maintenance outdoor space with brick-built store. The property has been much improved in recent years, being fully refurbished including a lovely re-fitted kitchen and bathroom, making it a ready to move in home.

Situated just a few minutes walk from the city centre, the house is ideally placed for access to an array of shops and amenities, whilst transport links are also readily available, including the A1 and regular 36 bus services to Harrogate and Leeds.

Details

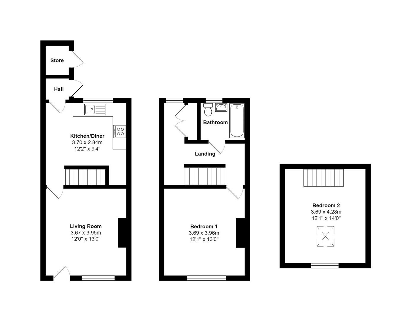
On entering the property, there is an entrance hall with stairs rising to the first floor. The living room is a good size, with a large window and access to the generous kitchen/diner/family room, with a separate utility area and WC. The kitchen is fitted with a range of modern wall and base units and some integrated appliances, whilst an understairs cupboard provides handy storage and a door gives access to the rear courtyard. Rising to the first floor, there is a landing and further staircase to the top floor, two well-proportioned bedrooms and house bathroom. The bathroom is part tiled and fitted with a white suite, including a bath and separate shower cubicle. The second floor boasts a generous main bedroom with skylight.

Externally, the rear of the property offers a lovely courtyard garden with brick-built store. It is paved for ease of maintenance and fully enclosed, providing a great space for outdoor seating and entertaining. The property also benefits from double glazing throughout, gas central heating and street parking to the front of the property.

Properties of this size and finish are extremely rare to market at this price point, and early viewing is advised to fully appreciate the spacious accommodation on offer.

This property is in council tax band B.

Floor Plans

Request Further Details

Or arrange a viewing

Our Blog

Latest news and updates

What Type of Survey Do I Need When Buying a Property in Ripon 2nd May Sales

What Type of Survey Do I Need When Buying a Property in Ripon

Buying a house in Ripon  is such an exciting time. Looking at areas, looking at different styles of property, different gardens, locations, schools, transport links….and of course, no one loves looking at property more than us! We adore it when our clients find the home of their dreams and move…

Read More
View to a thrill 12th February Lettings Sales

View to a thrill

Everybody lives differently. Of course they do. But when viewing properties, seeing past how someone else lives can be vital in terms of establishing whether the property is the one for you. It’s all too easy to get sidetracked by the ‘stuff’ rather than the ‘space’ that a property offers.…

Read More
Bank holds rate at 5.25% in split vote 1st February Landlords Lettings News Sales

Bank holds rate at 5.25% in split vote

The Bank of England has held the base interest rate at 5.25% for the fourth time running. David Callaghan 1st February 2024 The Bank of England held its base interest rate at 5.25% for the fourth time in a row today, but its Monetary Policy Committee was divided on the…

Read More
January market update 24th January Sales

January market update

2024 has started with a bang in terms of property sales. While predictions were for a slow start with interest rate uncertainty putting a brake on mortgages, plus the cold weather affecting viewings, reality is proving the opposite to be true. Serious buyers and sellers are out in force, at…

Read More