Search Properties

Steven Way, Ripon

Ripon

£189,950 Guide Price

2 x 1 x
Department:
Sales
Type:
Apartment
Availability:
For Sale
Receptions:
1
Council Tax Band:
D

Property features

  • TOP FLOOR APARTMENT
  • SPACIOUS OPEN PLAN LIVING ROOM AND KITCHEN / DINER
  • TWO GENEROUS DOUBLE BEDROOMS
  • NO CHAIN
  • SHORT WALK TO RIPON CITY CENTRE

Summary

A beautifully presented top floor apartment, located in one of Ripon’s most iconic buildings and set in the stunning landscaped grounds of the former college of Ripon and York St John.

The apartment occupies a prime spot in the building, revealing very spacious accommodation, which feels particularly light and airy throughout. Access is available through the impressive communal entrance halls, adding to the feeling of grandeur before even entering the apartment.

Located just a short walk from the city centre, the property is ideally situated, offering ease of access to the array of shops and restaurants that Ripon has to offer.

Details

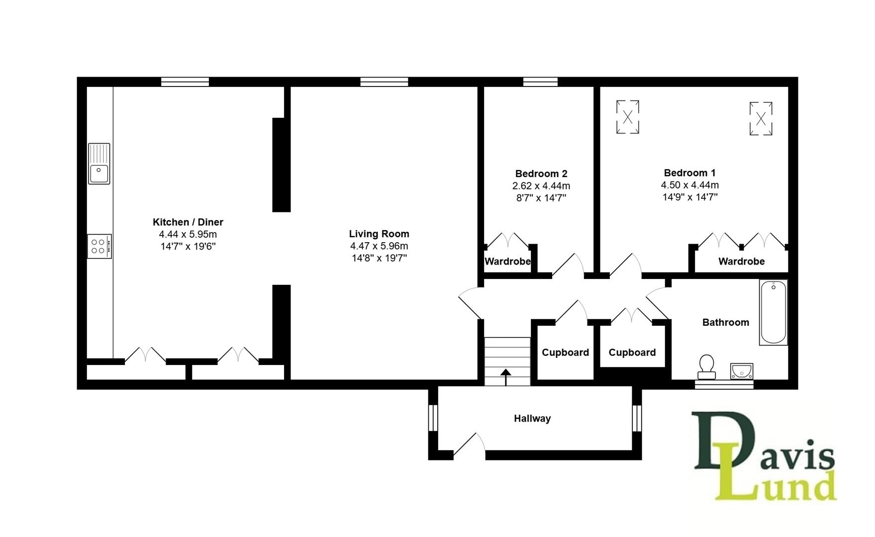
On the ground floor there is access to the communal entrance hall with an intercom entry system. Stairs, which service just a handful of apartments, rise to the top floor. The main entrance door leads to a private entrance hall, which could also be utilised as a study area. The inner hallway offers two storage cupboards, one of which houses the hot water system. The open plan living accommodation is particularly spacious, with a large living room and equally impressive open plan kitchen/diner, with eaves storage and coming fitted with a range of modern units and integrated appliances, making it both stylish and practical. The generous main bedroom comes fitted with wardrobes and skylights giving a light and airy feel, there is a further double bedroom, also with fitted wardrobes. The bathroom completes the layout, coming fitted with a white suite, including a bath with shower and glazed screen over

Externally there is an allocated parking space, plus further visitor parking. Access is available to a bike store, whilst the communal hallways also offer storage space, which the current residents utilise.
The apartment is sure to appeal to a range of prospective buyers, including investors looking for a buy to let purchase, with a strong monthly rental return achievable.

This property is in council tax band D.

Floor Plans

EPC

Request Further Details

Or arrange a viewing

Our Blog

Latest news and updates

What Type of Survey Do I Need When Buying a Property in Ripon 2nd May Sales

What Type of Survey Do I Need When Buying a Property in Ripon

Buying a house in Ripon  is such an exciting time. Looking at areas, looking at different styles of property, different gardens, locations, schools, transport links….and of course, no one loves looking at property more than us! We adore it when our clients find the home of their dreams and move…

Read More
View to a thrill 12th February Lettings Sales

View to a thrill

Everybody lives differently. Of course they do. But when viewing properties, seeing past how someone else lives can be vital in terms of establishing whether the property is the one for you. It’s all too easy to get sidetracked by the ‘stuff’ rather than the ‘space’ that a property offers.…

Read More
Bank holds rate at 5.25% in split vote 1st February Landlords Lettings News Sales

Bank holds rate at 5.25% in split vote

The Bank of England has held the base interest rate at 5.25% for the fourth time running. David Callaghan 1st February 2024 The Bank of England held its base interest rate at 5.25% for the fourth time in a row today, but its Monetary Policy Committee was divided on the…

Read More
January market update 24th January Sales

January market update

2024 has started with a bang in terms of property sales. While predictions were for a slow start with interest rate uncertainty putting a brake on mortgages, plus the cold weather affecting viewings, reality is proving the opposite to be true. Serious buyers and sellers are out in force, at…

Read More