Search Properties

St. Andrews Gate, Kirkby Malzeard

Kirkby Malzeard

£367,500 Guide Price

3 x 2 x
Department:
Sales
Type:
Semi-Detached House
Availability:
For Sale
Receptions:
3
Council Tax Band:
D

Summary

A delightful three bedroom semi-detached house, occupying a quiet cul-de-sac setting and revealing a light and airy interior, being neutrally decorated throughout. Extended to the rear, with the addition of a conservatory, the property now offers a spacious and flexible layout, sure to suit a variety of purchasers. A lovely enclosed rear garden, garage and parking, all add to the appeal, with this desirable family home.

Situated in the highly sought after village of Kirkby Malzeard, located approximately 6 miles from the cathedral city of Ripon, Kirkby Malzeard itself offers a number of amenities, including a shop, public house, garage/petrol station, butchers and primary school.

Details

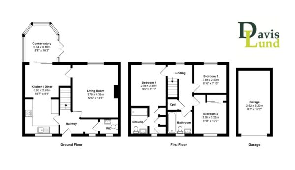
On the ground floor the main entrance door leads into the hallway, with a cloakroom/WC and stairs rising to the first floor. The good size living room offers views over the rear garden and a feature fireplace, which offers the potential to add a burner. The kitchen comes fitted with a range of modern units, leading into the good size open plan dining room, with access back to the lounge. Patio doors lead to the conservatory, which completes the downstairs layout, enjoying views and access to the rear garden. To the first floor there is a landing with an airing cupboard and loft access, main bedroom with a dressing area and part tiled ensuite shower room, two further double bedrooms (one with fitted wardrobes) and the part tiled house bathroom, fitted with a white three piece suite. The property is double glazed and oil central heating is in place.

Externally there is block paved driveway parking, also giving access to the single garage. The oil tank is neatly concealed, whilst gated access leads to the side of the house and rear garden. The house sits on a lovely established plot, with the delightful south facing rear garden, offering a high degree of privacy, whilst being perfect for purchasers with pets and children. The garden is part laid to lawn, with fenced boundaries, a patio entertainment area and handy storage shed.

The highly desirable location and lovely setting, make viewing essential, for those seeking modern village life.

This property is in council tax band D.

Floor Plans

EPC

Request Further Details

Or arrange a viewing

Our Blog

Latest news and updates

What Type of Survey Do I Need When Buying a Property in Ripon 2nd May Sales

What Type of Survey Do I Need When Buying a Property in Ripon

Buying a house in Ripon  is such an exciting time. Looking at areas, looking at different styles of property, different gardens, locations, schools, transport links….and of course, no one loves looking at property more than us! We adore it when our clients find the home of their dreams and move…

Read More
View to a thrill 12th February Lettings Sales

View to a thrill

Everybody lives differently. Of course they do. But when viewing properties, seeing past how someone else lives can be vital in terms of establishing whether the property is the one for you. It’s all too easy to get sidetracked by the ‘stuff’ rather than the ‘space’ that a property offers.…

Read More
Bank holds rate at 5.25% in split vote 1st February Landlords Lettings News Sales

Bank holds rate at 5.25% in split vote

The Bank of England has held the base interest rate at 5.25% for the fourth time running. David Callaghan 1st February 2024 The Bank of England held its base interest rate at 5.25% for the fourth time in a row today, but its Monetary Policy Committee was divided on the…

Read More
January market update 24th January Sales

January market update

2024 has started with a bang in terms of property sales. While predictions were for a slow start with interest rate uncertainty putting a brake on mortgages, plus the cold weather affecting viewings, reality is proving the opposite to be true. Serious buyers and sellers are out in force, at…

Read More