Search Properties

Laverton, Ripon

Ripon

£800,000 Guide Price

4 x 3 x 3 x
Department:
Sales
Reference:
10667513
Postcode:
HG4 3SX
Type:
Detached House
Availability:
For Sale
Receptions:
3
Council Tax Band:
F

Summary

A substantial and charming village farmhouse, revealing a beautifully presented interior and a particularly flexible layout, with three reception rooms, whilst also enjoying a lovely village setting and fabulous established gardens. The farmhouse has been sympathetically updated and kept to a very high standard over the years, with care taken to retain the properties charm and array of period features.

The property has been immaculately kept and upgraded over the years, already offering extensive accommodation of approximately 1800 square foot, the property undoubtedly offers the scope to extend, subject to necessary consents. The farmhouse is also ideal for purchasers looking to incorporate a relative, with the potential for a ground floor bedroom and already having a ground floor shower room in place.

Details

Located in the highly sought after village of Laverton, the property is situated close to Kirkby Malzeard, whilst also being approximately 7 miles from Ripon. Kirkby Malzeard itself offers a number of amenities, including a shop, public house, garage/petrol station, butchers and primary school. The property is ideally placed for the countryside, with endless walks and cycle trails on the doorstep, whilst the farmhouse enjoys a peaceful setting, tucked away up a small farm track.

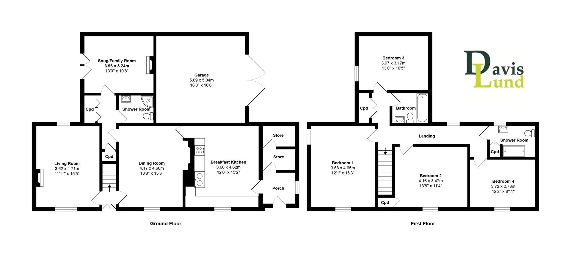
On the ground floor, there is access to the entrance porch/boot room, with extensive storage. There is a breakfast kitchen with LPG Aga, a great size dining room with attractive fireplace and range oven, hallway with stairs rising to the first floor, cosy double aspect living room again with a fireplace, inner hallway with storage, a modern shower room and the snug/family room, with a stove and double doors leading to the garden. To the first floor there is a landing with storage and loft access, four generous double bedrooms and both a bathroom and shower room, again all finished to a high standard. The property is double glazed and oil central heating is in place.

Externally, lane access leads to the large garage with additional mezzanine floor storage, plus a driveway proving parking for several vehicles. The gardens are extensive, being fully established and enjoying a lot of sunshine throughout the day. Part laid to lawn, there is an extensive patio entertainment area, as well as a summer house with power and light. The side garden backs onto fields, making for a lovely outlook.

No doubt sure to appeal to a variety of purchasers, properties of this size and standard are rare to market, especially in such a sought after location and an early viewing is essential, to appreciate the space and setting on offer.

This property is in council tax band F.

Floor Plans

EPC

Request Further Details

Or arrange a viewing

Our Blog

Latest news and updates

What Type of Survey Do I Need When Buying a Property in Ripon 2nd May Sales

What Type of Survey Do I Need When Buying a Property in Ripon

Buying a house in Ripon  is such an exciting time. Looking at areas, looking at different styles of property, different…

Read More
View to a thrill 12th February Lettings Sales

View to a thrill

Everybody lives differently. Of course they do. But when viewing properties, seeing past how someone else lives can be vital…

Read More
Bank holds rate at 5.25% in split vote 1st February Landlords Lettings News Sales

Bank holds rate at 5.25% in split vote

The Bank of England has held the base interest rate at 5.25% for the fourth time running. David Callaghan 1st…

Read More
January market update 24th January Sales

January market update

2024 has started with a bang in terms of property sales. While predictions were for a slow start with interest…

Read More