Search Properties

Lark Lane, Ripon

Ripon

£275,000 Guide Price

2 x 1 x
Department:
Sales
Reference:
8213892
Type:
Detached Bungalow
Availability:
For Sale
Receptions:
2
Council Tax Band:
A

Property features

  • NEUTRALLY DECORATED THROUGHOUT
  • TWO DOUBLE BEDROOMS
  • GOOD SIZE FRONT AND BACK GARDENS
  • PARKING FOR MULTIPLE CARS

Summary

A lovely two-bedroom detached bungalow, situated on a good size plot and located in a sought-after area on the western side of the city.

The bungalow is situated in one of Ripon’s highly desirable residential areas, and the property could not be better placed for Ripon’s secondary schools, with both the Outwood Academy and the highly regarded Ripon Grammar School just a short walk away. Shops and amenities are available close by, whilst the property is also ideally placed for countryside walks.

Details

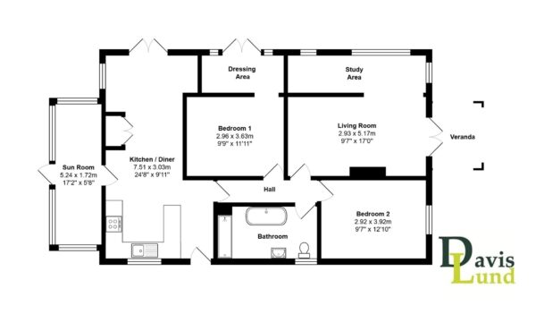
Entering the property, there is a good size living room with versatile study area, a spacious main bedroom with a dressing area, further double bedroom, a mostly tiled bathroom fitted with a white suite, including freestanding bath and separate walk-in shower with a glazed screen. There is also a generous size kitchen/diner/family room and a sun room/conservatory, which does require some updating. The kitchen is fitted with a range of modern units and appliances, with access to the side of the property and sunroom at the rear. The dining area has large windows giving a light and airy feel throughout.

Externally, the property benefits from generous front and rear gardens and a large driveway, providing parking for multiple cars. Gated access leads to the driveway and front garden, which is mostly laid to lawn with well-stocked borders. A paved area leads to the front porch, ideal for outdoor seating. To the side of the property is a patio area with shed for storage. The rear garden is fully enclosed with fenced and walled boundaries, and is partially gravelled and paved, plus an additional outbuilding for storage. While in need of some landscaping, it offers excellent potential to create an attractive outdoor living space.

Neutrally decorated throughout and situated in a prime location, an early viewing is advised for this chain free home.

This property is in council tax band A.

Floor Plans

EPC

Request Further Details

Or arrange a viewing

Our Blog

Latest news and updates

What Type of Survey Do I Need When Buying a Property in Ripon 2nd May Sales

What Type of Survey Do I Need When Buying a Property in Ripon

Buying a house in Ripon  is such an exciting time. Looking at areas, looking at different styles of property, different gardens, locations, schools, transport links….and of course, no one loves looking at property more than us! We adore it when our clients find the home of their dreams and move…

Read More
View to a thrill 12th February Lettings Sales

View to a thrill

Everybody lives differently. Of course they do. But when viewing properties, seeing past how someone else lives can be vital in terms of establishing whether the property is the one for you. It’s all too easy to get sidetracked by the ‘stuff’ rather than the ‘space’ that a property offers.…

Read More
Bank holds rate at 5.25% in split vote 1st February Landlords Lettings News Sales

Bank holds rate at 5.25% in split vote

The Bank of England has held the base interest rate at 5.25% for the fourth time running. David Callaghan 1st February 2024 The Bank of England held its base interest rate at 5.25% for the fourth time in a row today, but its Monetary Policy Committee was divided on the…

Read More
January market update 24th January Sales

January market update

2024 has started with a bang in terms of property sales. While predictions were for a slow start with interest rate uncertainty putting a brake on mortgages, plus the cold weather affecting viewings, reality is proving the opposite to be true. Serious buyers and sellers are out in force, at…

Read More