Search Properties

High Skellgate, Ripon

Ripon

£995 pcm

3 x 2 x
Department:
Lettings
Type:
House
Availability:
Let Agreed
Receptions:
2
Deposit:
£1,148
Available Date:
2026-03-20

Summary

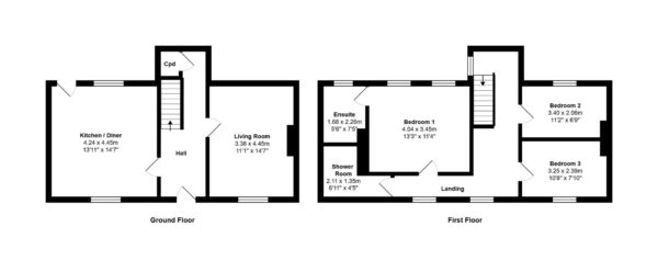
A charming three bedroom, two bathroom Grade II listed double-fronted property ideally situated just off the Market Place, offering character features and well-proportioned accommodation arranged over two floors.

The ground floor comprises a welcoming entrance hall with stairs rising to the first floor and useful under-stairs storage cupboard. To one side is a spacious dual-aspect kitchen/diner, ideal for everyday living and entertaining, while to the other sits a generous living room enjoying excellent natural light.

Upstairs, the landing provides access to three bedrooms and family facilities. The principal bedroom is a comfortable double with the benefit of an ensuite shower room. Two further bedrooms offer flexible accommodation for family, guests or home working. A separate shower room serves the remaining bedrooms.

Externally to the rear, the property overlooks the communal court yard.

Floor Plans

Request Further Details

Or arrange a viewing

Our Blog

Latest news and updates

What Type of Survey Do I Need When Buying a Property in Ripon 2nd May Sales

What Type of Survey Do I Need When Buying a Property in Ripon

Buying a house in Ripon  is such an exciting time. Looking at areas, looking at different styles of property, different gardens, locations, schools, transport links….and of course, no one loves looking at property more than us! We adore it when our clients find the home of their dreams and move…

Read More
View to a thrill 12th February Lettings Sales

View to a thrill

Everybody lives differently. Of course they do. But when viewing properties, seeing past how someone else lives can be vital in terms of establishing whether the property is the one for you. It’s all too easy to get sidetracked by the ‘stuff’ rather than the ‘space’ that a property offers.…

Read More
Bank holds rate at 5.25% in split vote 1st February Landlords Lettings News Sales

Bank holds rate at 5.25% in split vote

The Bank of England has held the base interest rate at 5.25% for the fourth time running. David Callaghan 1st February 2024 The Bank of England held its base interest rate at 5.25% for the fourth time in a row today, but its Monetary Policy Committee was divided on the…

Read More
January market update 24th January Sales

January market update

2024 has started with a bang in terms of property sales. While predictions were for a slow start with interest rate uncertainty putting a brake on mortgages, plus the cold weather affecting viewings, reality is proving the opposite to be true. Serious buyers and sellers are out in force, at…

Read More