Search Properties

Hall Mews, Melmerby

Melmerby

£750 pcm

1 x 1 x 2 x
Department:
Lettings
Postcode:
HG4 5HA
Type:
Apartment
Availability:
Let Agreed
Receptions:
2
Deposit:
£0
Available Date:
2026-04-27
Council Tax Band:
A

Summary

A recently renovated and stylishly presented first floor apartment, revealing a versatile layout and also offering a private entrance, further downstairs space and a good size garage.

The apartment is located in the highly desirable village of Melmerby, which offers a great community spirit. Ripon is just a short drive away, meaning amenities are readily available. The location is also ideal for commuters, with ease of access to the A1 and A19, whilst national rail links are available from Thirsk, approximately 7 miles away.

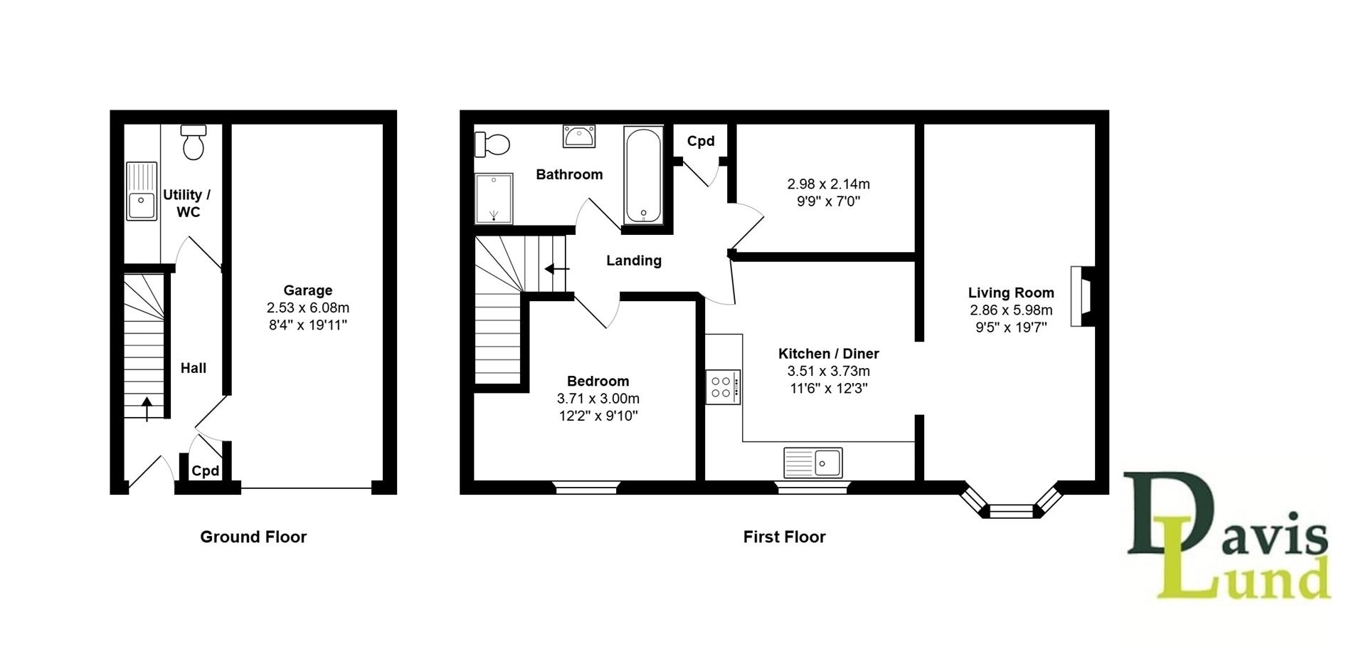
On the ground floor the private entrance door leads to a spacious tiled entrance hall, with stairs rising to the first floor, a utility room/WC and access to the good size garage, with an up and over door, power and light. To the first floor there is a landing with loft access and storage cupboard, a stylish kitchen with integrated appliances, the good size living room, main double bedroom, further additional multi-functional room and the bathroom, fitted with both a bath and separate shower. The apartment is double glazed and electric heating is in place.

Externally vehicle access is available, leading to the garage for parking. Walkway pedestrian access is also available to the main street.

This property is in council tax band A.

Floor Plans

EPC

Request Further Details

Or arrange a viewing

Our Blog

Latest news and updates

What Type of Survey Do I Need When Buying a Property in Ripon 2nd May Sales

What Type of Survey Do I Need When Buying a Property in Ripon

Buying a house in Ripon  is such an exciting time. Looking at areas, looking at different styles of property, different…

Read More
View to a thrill 12th February Lettings Sales

View to a thrill

Everybody lives differently. Of course they do. But when viewing properties, seeing past how someone else lives can be vital…

Read More
Bank holds rate at 5.25% in split vote 1st February Landlords Lettings News Sales

Bank holds rate at 5.25% in split vote

The Bank of England has held the base interest rate at 5.25% for the fourth time running. David Callaghan 1st…

Read More
January market update 24th January Sales

January market update

2024 has started with a bang in terms of property sales. While predictions were for a slow start with interest…

Read More