Search Properties

Clifton Road, Darlington

Darlington

£185,000 Guide Price

4 x 4 x
Department:
Sales
Type:
House
Availability:
For Sale
Receptions:
1
Council Tax Band:
A

Property features

  • INVESTMENT OPPORTUNITY
  • GREAT RENTAL YIELD
  • RECENTLY RENOVATED
  • SPACIOUS

Summary

An exciting opportunity to acquire a four bedroom terraced house of multiple occupancy, achieving in excess £2000pcm when fully occupied.

The property is fully managed and the furnished rooms have been in high demand. The property was renovated and completed a little over 2 years ago and is modern and well maintained throughout.

Located in the sought after newly re-developed town of Darlington, the property is situated less than 10 minutes walk from the city centre and railway station. The city centre is great for shopping, meals out and has a Vue cinema. It also has regular bus services throughout the North East, direct rail links to London Kings Cross to the south and Newcastle and Edinburgh to the north, and easy access to the A1(M) north and south and the A66 west and east, making it ideal for commuters.

Details

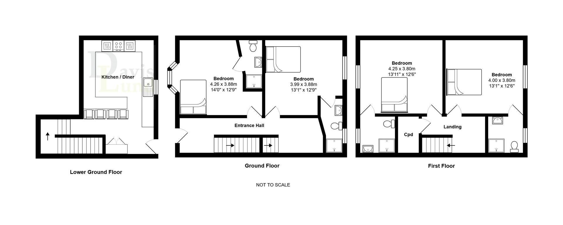
On entering the property, there is a hallway with stairs rising to the first and lower ground floors. The property boasts four double bedrooms all with fully tiled ensuite shower rooms. All bedrooms are similar in size, which allows a good yield for each. On the lower ground floor, there is an excellent-sized kitchen/diner, fitted with a range of units allowing ample storage for each tenant. Appliances include a washing machine, American style fridge/freezer, two in-built ovens and hob with 5 heating zones available for the tenants convenience. From the kitchen, a door gives access to the rear courtyard.

Externally, the rear of the property offers a communal courtyard with individual storage sheds, and space to sit outside. Street permit parking is available to the front of the property, and there is a newly developed car park directly opposite. The property also benefits from electric heating via solar panels, an in-house ventilation system and double-glazing throughout.

Properties with this yield are rare to market at this price point so it is sure to appeal to a variety of investors, please contact us for further details, or to arrange a viewing.

Floor Plans

EPC

Request Further Details

Or arrange a viewing

Our Blog

Latest news and updates

What Type of Survey Do I Need When Buying a Property in Ripon 2nd May Sales

What Type of Survey Do I Need When Buying a Property in Ripon

Buying a house in Ripon  is such an exciting time. Looking at areas, looking at different styles of property, different gardens, locations, schools, transport links….and of course, no one loves looking at property more than us! We adore it when our clients find the home of their dreams and move…

Read More
View to a thrill 12th February Lettings Sales

View to a thrill

Everybody lives differently. Of course they do. But when viewing properties, seeing past how someone else lives can be vital in terms of establishing whether the property is the one for you. It’s all too easy to get sidetracked by the ‘stuff’ rather than the ‘space’ that a property offers.…

Read More
Bank holds rate at 5.25% in split vote 1st February Landlords Lettings News Sales

Bank holds rate at 5.25% in split vote

The Bank of England has held the base interest rate at 5.25% for the fourth time running. David Callaghan 1st February 2024 The Bank of England held its base interest rate at 5.25% for the fourth time in a row today, but its Monetary Policy Committee was divided on the…

Read More
January market update 24th January Sales

January market update

2024 has started with a bang in terms of property sales. While predictions were for a slow start with interest rate uncertainty putting a brake on mortgages, plus the cold weather affecting viewings, reality is proving the opposite to be true. Serious buyers and sellers are out in force, at…

Read More