Search Properties

Claro Road, Ripon

Ripon

£190,000 Guide Price

3 x 1 x 2 x
Department:
Sales
Postcode:
HG4 1QB
Type:
Terraced House
Availability:
Sold STC
Receptions:
2
Council Tax Band:
B

Property features

  • *NEW PRICE*
  • GOOD SIZE GARDEN
  • OFF STREET PARKING
  • MODERN KITCHEN DINER

Summary

*NEW PRICE* A stylish and immaculately presented three bedroom terraced house, revealing a spacious interior, off street parking and a fantastic size rear garden. This lovely family home offers great value for money and it is sure to be of interest to a range of purchasers, including first time buyers looking for a turn key property.

The property occupies a handy location with ease of access to the city centre and all of Ripon’s shops, restaurants and amenities. The house is also located close to the Ripon Leisure centre, which now houses the new swimming baths. The property is ideal for walkers, with lovely riverside and canal side walks close by, whilst there is even a play park around the corner.

Details

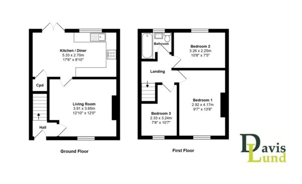
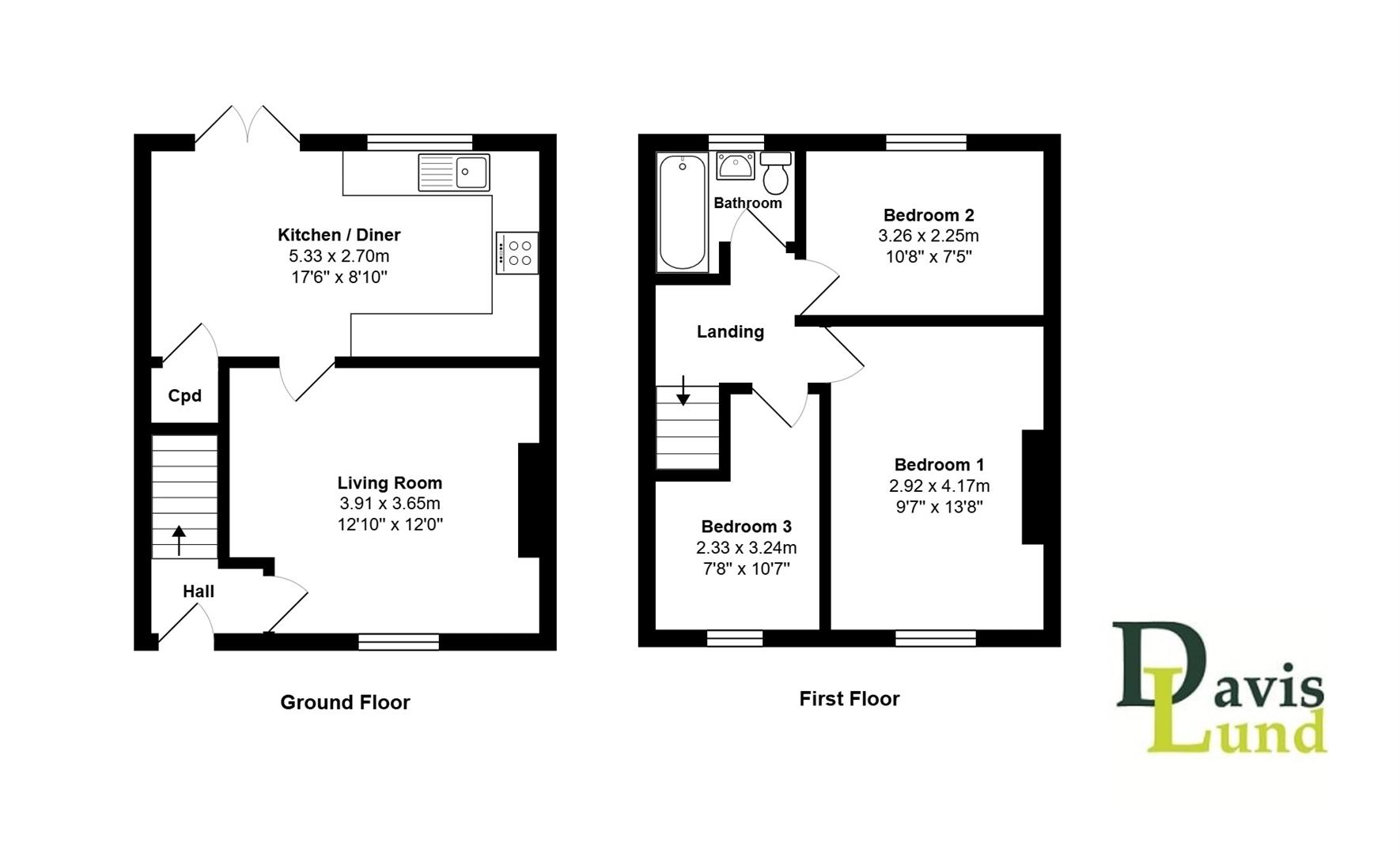
On the ground floor there is an entrance hall with stairs rising to the first floor and access to the living room, with fitted storage and shelving. There is a kitchen/diner to the rear of the house, fitted with a range of modern units and housing the gas central heating boiler, whilst there is further understairs storage and double doors to the rear garden. To the first floor there is landing with loft access hatch, leading to the boarded and carpeted loft space, with two skylights, power and light. There are three bedrooms (two doubles and one single) and the stylish bathroom, recently re-fitted with a modern white three piece suite, including a bath with shower and glazed screen over.

Externally there is block paved parking (with electric charger point) to the front of the house, whilst access is available to the lovely enclosed rear garden. The garden is a great size and mainly laid to lawn, with two decked seating areas and a fantastic insulated garden room, currently utilised as a home office, but no doubt ideal for a number of uses and coming fitted with power and light.

This deceptively spacious house is sure to attract high levels of interest, and an early viewing is advised on this lovely home.

This property is in council tax band B.

Floor Plans

EPC

Request Further Details

Or arrange a viewing

Our Blog

Latest news and updates

What Type of Survey Do I Need When Buying a Property in Ripon 2nd May Sales

What Type of Survey Do I Need When Buying a Property in Ripon

Buying a house in Ripon  is such an exciting time. Looking at areas, looking at different styles of property, different…

Read More
View to a thrill 12th February Lettings Sales

View to a thrill

Everybody lives differently. Of course they do. But when viewing properties, seeing past how someone else lives can be vital…

Read More
Bank holds rate at 5.25% in split vote 1st February Landlords Lettings News Sales

Bank holds rate at 5.25% in split vote

The Bank of England has held the base interest rate at 5.25% for the fourth time running. David Callaghan 1st…

Read More
January market update 24th January Sales

January market update

2024 has started with a bang in terms of property sales. While predictions were for a slow start with interest…

Read More