Search Properties

Allhallowgate, Ripon

Ripon

£185,000 Guide Price

2 x 1 x
Department:
Sales
Reference:
9970804
Type:
Apartment
Availability:
For Sale
Receptions:
1
Council Tax Band:
C

Property features

  • NO CHAIN
  • SECURE PARKING
  • OPEN PLAN LIVING SPACE
  • LOVELY OUTLOOK

Summary

A neatly presented, two-bedroom maisonette apartment, situated on a small and highly regarded development, just a few seconds walk from the historic city centre.

The surprisingly spacious apartment is neutrally decorated and well-presented throughout, whilst also benefitting from secure parking to the lower level. There is open plan living and two bedrooms, plus a storeroom, which could be utilised as a further bedroom.

The property offers ease of access to all the amenities that Ripon has to offer, including Ripon bus station and the new Aldi and Marks and Spencer’s supermarkets close by. Ripon itself is ideally located for commuters offering ease of access to the A19 and A1.

Details

The apartment is accessed through a communal entrance hall, with intercom access, communal storage room and stairs leading to the secure parking area on the lower level.

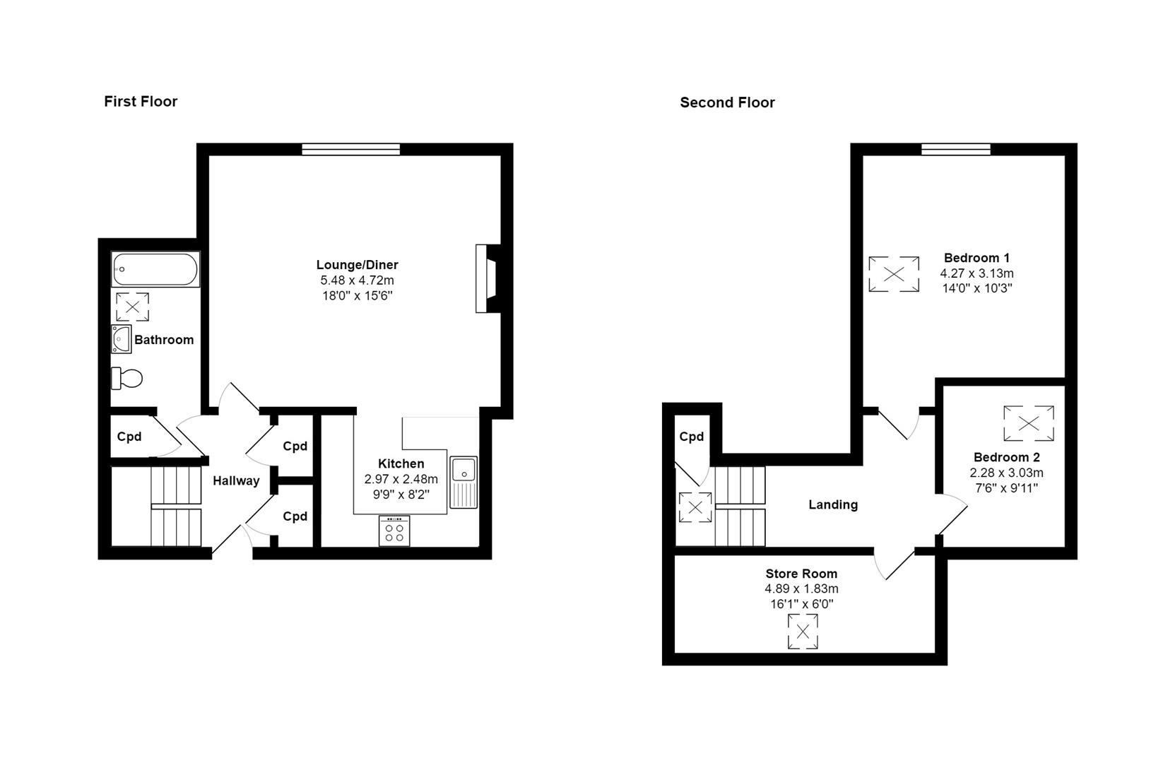
Entering the apartment, there is a private entrance hall with stairs rising to the upper floor and two cupboards providing handy storage. The spacious kitchen/lounge/diner enjoys a lovely open aspect with views of trees and parkland to the rear, along with a gas fireplace and hardwood flooring. The kitchen is fitted with a variety of base and wall mounted units, tiled backsplash, and some appliances. Fully tiled, the bathroom completes the downstairs layout and is fitted with a white suite, including bath with shower and glazed screen over. Upstairs, there is a spacious landing with storage cupboard providing space and plumbing for a washing machine, generous main bedroom, further single bedroom and a storeroom with pitched ceiling and skylight.

To the side of the building, a block paved parking area gives access to the underground parking, with electric roller access door. There are also additional guest parking spaces.

The property’s central location would make it ideal for retirement living, whilst it is also sure to appeal to first time buyers and buy to let investors. The apartment benefits from gas central heating and double glazing, an internal viewing is advised on this spacious and quirky property.

This property is in council tax band C.

Floor Plans

EPC

Request Further Details

Or arrange a viewing

Our Blog

Latest news and updates

What Type of Survey Do I Need When Buying a Property in Ripon 2nd May Sales

What Type of Survey Do I Need When Buying a Property in Ripon

Buying a house in Ripon  is such an exciting time. Looking at areas, looking at different styles of property, different gardens, locations, schools, transport links….and of course, no one loves looking at property more than us! We adore it when our clients find the home of their dreams and move…

Read More
View to a thrill 12th February Lettings Sales

View to a thrill

Everybody lives differently. Of course they do. But when viewing properties, seeing past how someone else lives can be vital in terms of establishing whether the property is the one for you. It’s all too easy to get sidetracked by the ‘stuff’ rather than the ‘space’ that a property offers.…

Read More
Bank holds rate at 5.25% in split vote 1st February Landlords Lettings News Sales

Bank holds rate at 5.25% in split vote

The Bank of England has held the base interest rate at 5.25% for the fourth time running. David Callaghan 1st February 2024 The Bank of England held its base interest rate at 5.25% for the fourth time in a row today, but its Monetary Policy Committee was divided on the…

Read More
January market update 24th January Sales

January market update

2024 has started with a bang in terms of property sales. While predictions were for a slow start with interest rate uncertainty putting a brake on mortgages, plus the cold weather affecting viewings, reality is proving the opposite to be true. Serious buyers and sellers are out in force, at…

Read More