Search Properties

Wakeman Road, Ripon

Ripon

£230,000 Guide Price

3 x 1 x
Department:
Sales
Type:
End of Terrace House
Availability:
For Sale
Receptions:
1
Council Tax Band:
B

Property features

  • CHAIN FREE
  • THREE BEDROOMS
  • DRIVEWAY FOR MULTIPLE CARS
  • SPACIOUS LIVING ROOM
  • WALKING DISTANCE FROM RIPON TOWN CENTRE

Summary

A neatly presented three bedroom family home, offering good size, low maintenance gardens and a handy central location. The house reveals a neutrally decorated interior and well-proportioned rooms throughout, so is sure to appeal to a variety of purchasers.

The house is located close to the city centre, affording ease of access to all of Ripon’s shops, restaurants, schools and amenities. The property is also situated very close to the Ripon Leisure centre, which also houses the new swimming baths. The Ripon bypass is also available within seconds, making the property ideally placed for commuters as well.

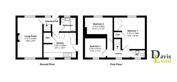
Entering the property is an entrance hall with a tiled floor and stairs rising to the first floor, double aspect living room with an attractive feature fireplace, good size kitchen with modern fitted units and under stairs cupboard providing further storage, whilst a door leads to the rear garden and the fully tiled family bathroom, fitted with a white suite including a bath with shower over. To the first floor there is a landing with loft access hatch, three double bedrooms (one with fitted storage) and an upstairs WC, fitted with a white toilet and basin. The property also benefits from double-glazing throughout and gas central heating

Externally, a driveway and steps lead to the front garden, which is gravelled for ease of maintenance. The lovely rear garden is partially enclosed, with fenced and walled boundaries, affording a high degree of privacy in places. The driveway leads up to a large parking area with space for multiple cars and it is quite rare for properties to offer so much parking, in this area and budget.

The property offers generous size accommodation for the price bracket and it is sure to appeal to a variety of purchasers, including first time buyers and investors looking for a rental property, so an early viewing is advised on this chain free home.

This property is in council tax band B.

Floor Plans

Request Further Details

Or arrange a viewing

Our Blog

Latest news and updates

What Type of Survey Do I Need When Buying a Property in Ripon 2nd May Sales

What Type of Survey Do I Need When Buying a Property in Ripon

Buying a house in Ripon  is such an exciting time. Looking at areas, looking at different styles of property, different gardens, locations, schools, transport links….and of course, no one loves looking at property more than us! We adore it when our clients find the home of their dreams and move…

Read More
View to a thrill 12th February Lettings Sales

View to a thrill

Everybody lives differently. Of course they do. But when viewing properties, seeing past how someone else lives can be vital in terms of establishing whether the property is the one for you. It’s all too easy to get sidetracked by the ‘stuff’ rather than the ‘space’ that a property offers.…

Read More
Bank holds rate at 5.25% in split vote 1st February Landlords Lettings News Sales

Bank holds rate at 5.25% in split vote

The Bank of England has held the base interest rate at 5.25% for the fourth time running. David Callaghan 1st February 2024 The Bank of England held its base interest rate at 5.25% for the fourth time in a row today, but its Monetary Policy Committee was divided on the…

Read More
January market update 24th January Sales

January market update

2024 has started with a bang in terms of property sales. While predictions were for a slow start with interest rate uncertainty putting a brake on mortgages, plus the cold weather affecting viewings, reality is proving the opposite to be true. Serious buyers and sellers are out in force, at…

Read More