Search Properties

Oak Drive, Sowerby, Thirsk

Sowerby

£1,800 pcm

4 x 2 x
Department:
Lettings
Type:
Detached House
Availability:
Let Agreed
Receptions:
3
Deposit:
£2,076
Available Date:
2026-01-08
Council Tax Band:
E

Summary

A well-presented four double bedroom, modern detached family home, occupying a prime plot within a highly desirable residential development. The property is set back from the road and benefits from a generous, south-facing rear garden.

Built in 2021, the house offers a contemporary interior finished to a high standard and maintained in excellent condition throughout. Externally, the garden has been enhanced with two spacious decked seating areas, one of which is fully covered by a substantial timber gazebo with power supply and outdoor heaters, providing a versatile outdoor entertaining space suitable for year-round use.

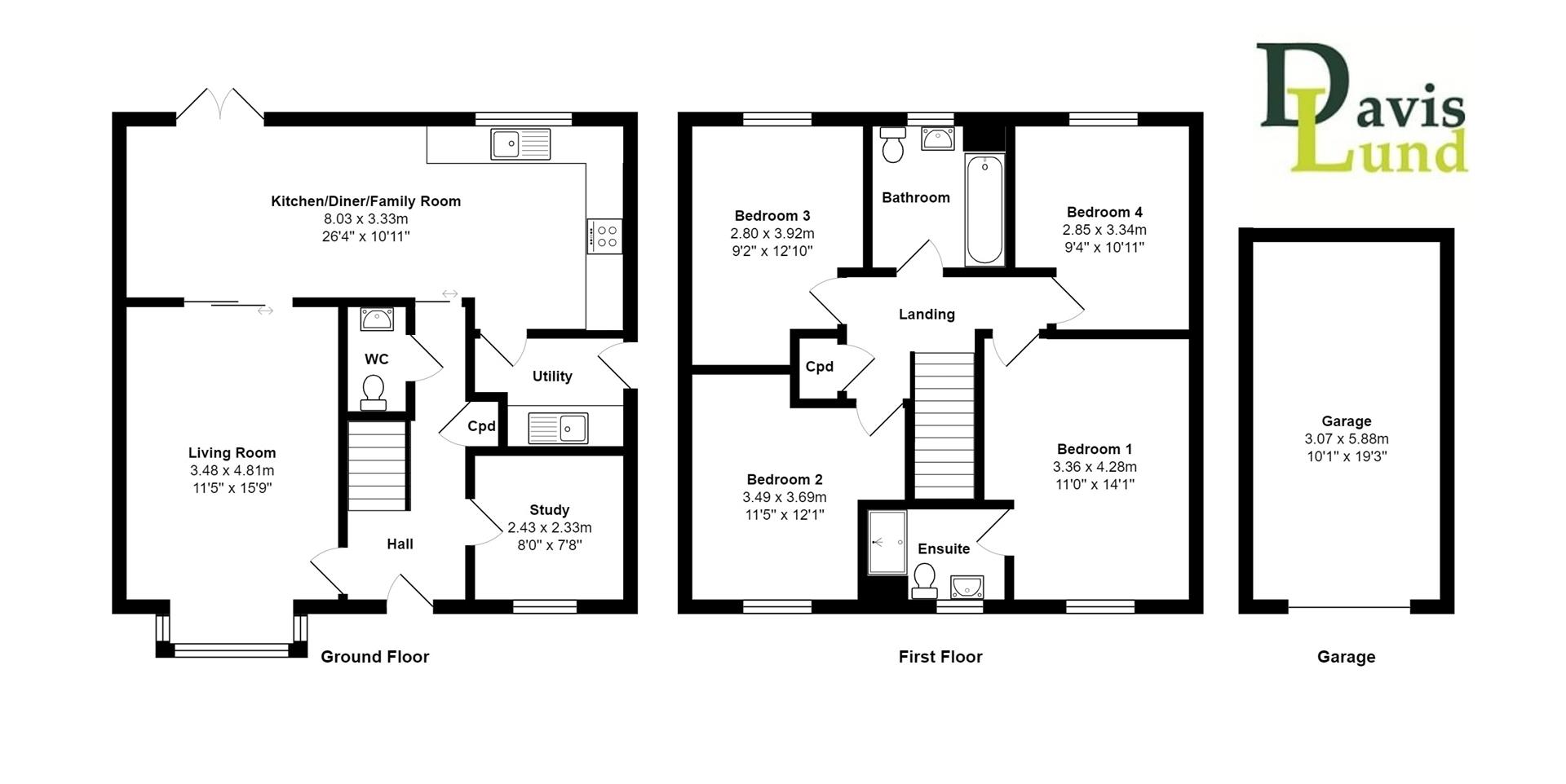
The ground floor accommodation comprises a welcoming entrance hall with tiled flooring, stairs to the first floor, a cloakroom/WC and a useful storage cupboard. The living room features a large bay window and opens through to an impressive open-plan kitchen/diner/family room. This space also benefits from tiled flooring, double doors leading to the rear garden and access to the utility room, which houses the gas central heating boiler, washing machine and a side access door. The kitchen is fitted with a modern range of units and includes a full complement of integrated appliances. A separate study completes the ground floor and would suit a variety of uses, including home working.

To the first floor is a landing with loft access and an airing cupboard, a principal bedroom with en-suite shower room, three further double bedrooms and a family bathroom fitted with a white suite comprising a bath with shower over.

Outside, the property offers an open lawned garden to the front, while the driveway provides off-street parking for multiple vehicles and access to a single detached garage. Gated side access leads to the enclosed rear garden, which enjoys a favourable aspect and good levels of natural sunlight throughout the day. The garden is mainly laid to lawn and also includes a patio, decked seating area and covered entertaining space.

Details

The property is located on a modern development in the sought-after Sowerby area of Thirsk, conveniently positioned for local schools, shops and leisure facilities. There is easy access to the A19 and A1(M), and Thirsk railway station is a short drive away.

Further benefits include gas central heating, double glazing and a strong energy efficiency rating.

Council Tax Band: E.

Floor Plans

EPC

Request Further Details

Or arrange a viewing

Our Blog

Latest news and updates

What Type of Survey Do I Need When Buying a Property in Ripon 2nd May Sales

What Type of Survey Do I Need When Buying a Property in Ripon

Buying a house in Ripon  is such an exciting time. Looking at areas, looking at different styles of property, different gardens, locations, schools, transport links….and of course, no one loves looking at property more than us! We adore it when our clients find the home of their dreams and move…

Read More
View to a thrill 12th February Lettings Sales

View to a thrill

Everybody lives differently. Of course they do. But when viewing properties, seeing past how someone else lives can be vital in terms of establishing whether the property is the one for you. It’s all too easy to get sidetracked by the ‘stuff’ rather than the ‘space’ that a property offers.…

Read More
Bank holds rate at 5.25% in split vote 1st February Landlords Lettings News Sales

Bank holds rate at 5.25% in split vote

The Bank of England has held the base interest rate at 5.25% for the fourth time running. David Callaghan 1st February 2024 The Bank of England held its base interest rate at 5.25% for the fourth time in a row today, but its Monetary Policy Committee was divided on the…

Read More
January market update 24th January Sales

January market update

2024 has started with a bang in terms of property sales. While predictions were for a slow start with interest rate uncertainty putting a brake on mortgages, plus the cold weather affecting viewings, reality is proving the opposite to be true. Serious buyers and sellers are out in force, at…

Read More