Search Properties

Allhallowgate, Ripon

Ripon

£925 pcm

2 x 1 x
Department:
Lettings
Reference:
9970804
Type:
Apartment
Availability:
To Let
Receptions:
1
Furnished:
Unfurnished
Deposit:
£1,067
Available Date:
2026-02-10
Council Tax Band:
C

Summary

A centrally located maisonette apartment, situated on a small and highly regarded development, just a few seconds walk from the historic city centre. The property offers ease of access to all the amenities that Ripon has to offer, including Ripon bus station and Aldi and Marks and Spencer’s supermarkets close by.

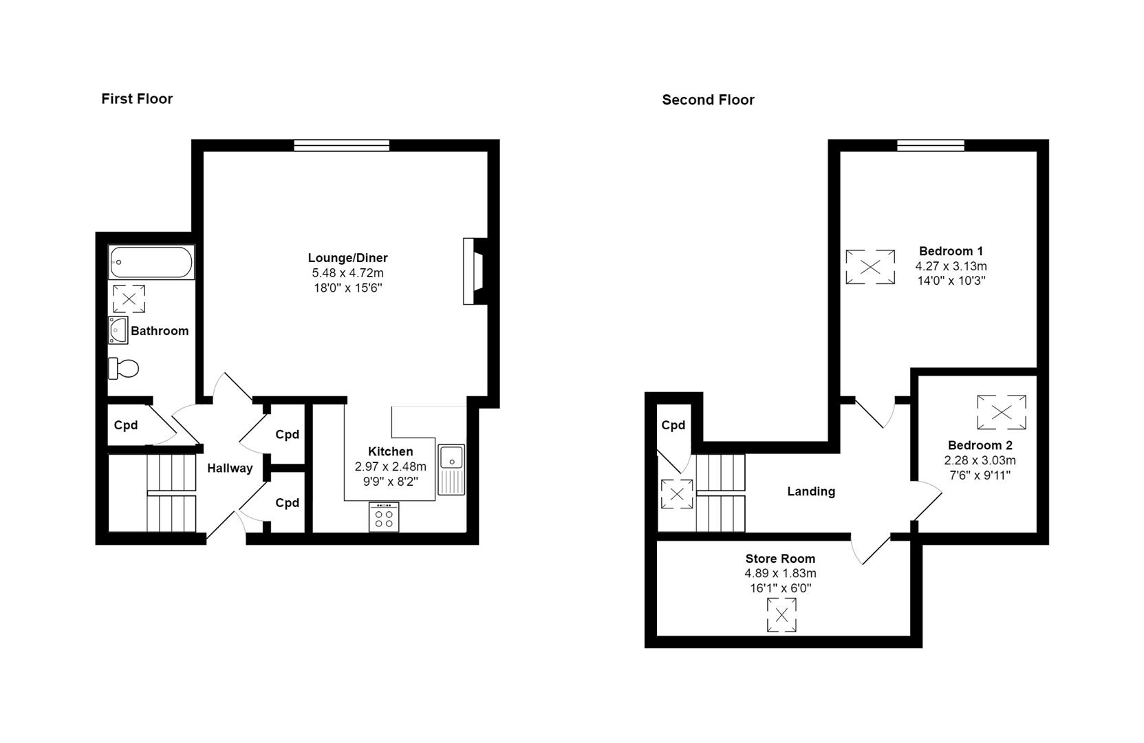
The surprisingly spacious apartment is neutrally decorated and well presented throughout, whilst also benefitting from secure parking to the lower level. There is open plan living and two bedrooms, plus a store room, which can be used as an additional bedroom.

The apartment is accessed via a communal entrance hall, with intercom access, shared storage room and stairs leading down to the parking area, meaning you can access your vehicle without leaving the building.

Internally the accommodation includes a private entrance hall with stairs to the upper floor and two handy storage cupboards, spacious open plan lounge/diner with a fireplace and a lovely open aspect over trees and parkland to the rear, plus a fitted kitchen with a range of units.

To the upper floor there is there is landing with storage cupboard housing the gas central heating boiler and also providing space and plumbing for a washing machine, good size master bedroom again enjoying a lovely outlook, second bedroom and further store room with pitched ceiling and skylight.

To the side of the building, a block paved parking area gives access to the underground parking, with electric roller access door. There is also additional guest parking spaces.

Council tax band C
Please check the Ofcom website for mobile and broadband coverage

Floor Plans

EPC

Request Further Details

Or arrange a viewing

Our Blog

Latest news and updates

What Type of Survey Do I Need When Buying a Property in Ripon 2nd May Sales

What Type of Survey Do I Need When Buying a Property in Ripon

Buying a house in Ripon  is such an exciting time. Looking at areas, looking at different styles of property, different gardens, locations, schools, transport links….and of course, no one loves looking at property more than us! We adore it when our clients find the home of their dreams and move…

Read More
View to a thrill 12th February Lettings Sales

View to a thrill

Everybody lives differently. Of course they do. But when viewing properties, seeing past how someone else lives can be vital in terms of establishing whether the property is the one for you. It’s all too easy to get sidetracked by the ‘stuff’ rather than the ‘space’ that a property offers.…

Read More
Bank holds rate at 5.25% in split vote 1st February Landlords Lettings News Sales

Bank holds rate at 5.25% in split vote

The Bank of England has held the base interest rate at 5.25% for the fourth time running. David Callaghan 1st February 2024 The Bank of England held its base interest rate at 5.25% for the fourth time in a row today, but its Monetary Policy Committee was divided on the…

Read More
January market update 24th January Sales

January market update

2024 has started with a bang in terms of property sales. While predictions were for a slow start with interest rate uncertainty putting a brake on mortgages, plus the cold weather affecting viewings, reality is proving the opposite to be true. Serious buyers and sellers are out in force, at…

Read More